2 Bed Apartment for Sale

Palmerston Road, London, N22


2 1 1

£350,000


Share:

To discuss this property call

020 7952 5197

Arrange a viewing

Description

  • Ground Floor
  • Newly Refurbished
  • Communal Gardens
  • Chain Free
  • Purpose Built Apartment Block
  • Leasehold
  • Close to Bowes Park & Bounds Green Stations
  • Double Glazed Windows
  • Excellent Storage Throughout
  • Parks & New River Nearby
  • Tenure: Leasehold
  • Remaining Lease: 128 years


Newly refurbished charming two bedroom apartment located on the ground floor of this peaceful purpose built apartment block, with communal gardens. Close to Bounds Green and Bowes Park Stations, with the New River & Broomfield Park nearby for peaceful strolls.

Main description

This lovely flat offers peaceful accommodation with living area and kitchen tucked away at the rear of the building overlooking the gardens. Excellent size main bedroom to front and additional smaller double room available, stylish bathroom with bath and shower, open plan kitchen living room and excellent storage facilities throughout.

Offered with no onward chain.

Leasehold with 128 years remaining

Service charge: £1500 PA. Ground rent N/A.

Valuation

Book a Valuation

Book a virtual or in-person valuation for your property


More details
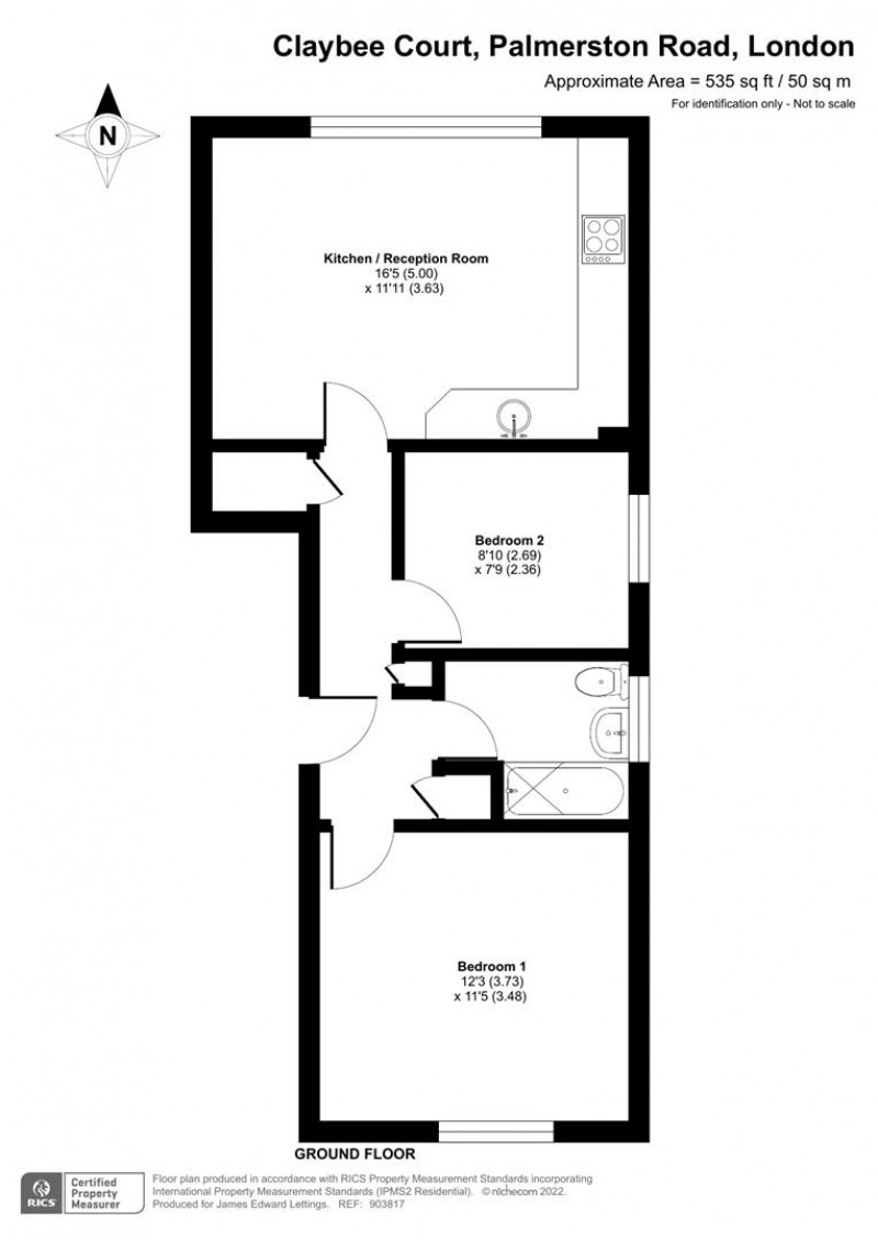
Floorplan for Palmerston Road, N22 8QZ
EPC Graph for Palmerston Road, N22 8QZ


ARLA
Rightmove
Zoopla
Prime Location
PRS
CMP