4 Bed House for Sale

Riversdale Road, London, N5


4 1 1

£1,250,000


Share:

To discuss this property call

020 7952 5197

Arrange a viewing

Description

  • Mid-Terrace Victorian House
  • Freehold
  • Chain Free
  • Private Garden
  • Refurbishment Project
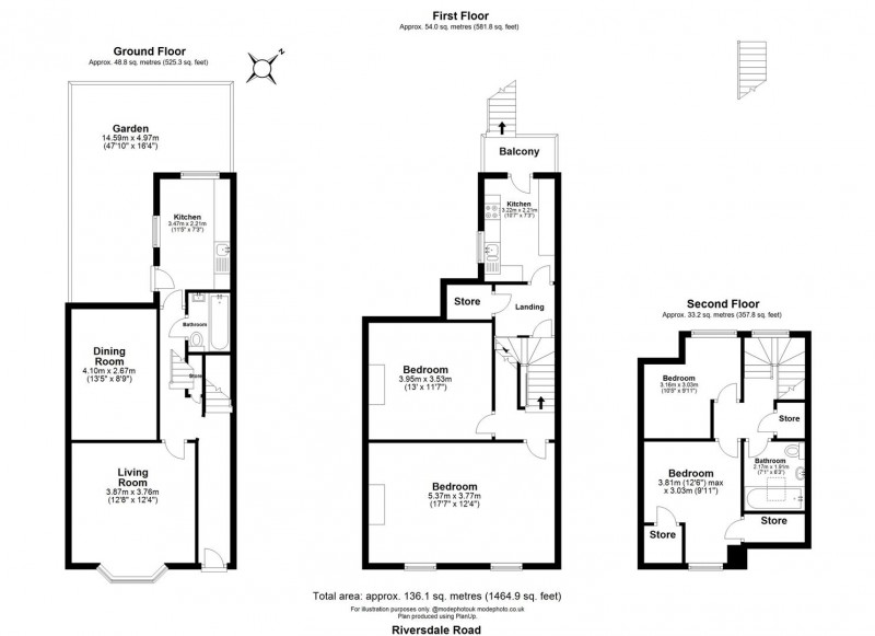
  • 1465 sq ft
  • Arranged Over Three Floors
  • Close to Clissold Park
  • Close to Arsenal Station
  • Close to Highbury Barn
  • Tenure: Freehold


Beautiful four double bedroom Victorian mid-terrace house, ideally situated on Riversdale Road. Extremely close to Clissold Park, Highbury Barn and Arsenal Station. In need of refurbishment.

Full description

Impressive 1465 sq ft Victorian house ideally situated on Riversdale Road. This property is currently informally arranged as two flats and would make an ideal project, to restore back to a family home.

Riversdale Road is a lovely location with Clissold Park, Highbury Barn, Arsenal Station and Finsbury Park, all within extremely close walking distance.

Offered chain free, freehold.

Valuation

Book a Valuation

Book a virtual or in-person valuation for your property


More details
Floorplan for Riversdale Road, N5 2JT


ARLA
Rightmove
Zoopla
Prime Location
PRS
CMP