3 Bed House to Rent

Langham Road, London, N15


3 1 1

£3,100 PCM


Share:

To discuss this property call

020 7952 5197

Arrange a viewing

Description

  • Beautifully Presented
  • Carefully Restored & Refurbished
  • Three Double Bedrooms
  • Peaceful Location
  • Excellent Transport Links
  • Spacious Rear Garden
  • Solid Wood Floors
  • Close to Parks


A beautifully modernised and tastefully presented three bedroom family home located on this peaceful street with parks tube and amenities all a short walk away.

Full Description

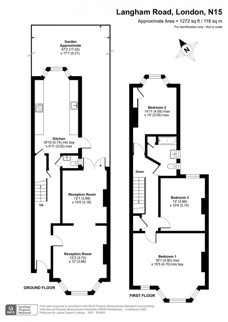
New to the market, this wonderful home has undergone a loving refurbishment inside and out in recent years by the current owners. The tasteful and considerately arranged accommodation comprises reception & dining room with bay window, working fireplace, original wooden flooring and bespoke French doors onto rear garden. Newly appointed kitchen with ample cupboard space, wooden work surfaces, high-spec appliances, bay dining space and side-door onto rear garden. There is also a ground floor w/c. Arranged over the upper floors is the double fronted master bedroom, two additional bedrooms and family bathroom with bath and shower.

Just a very short walk from the property are the popular Downhills Park, Lordship Recreation Ground and Belmont Recreation Ground, offering lovely walks, café culture and a variety of playgrounds. Turnpike Lane underground station (Piccadilly line) is at the other end of the street, with easy access to central London and the City. Hornsey station is a further five minutes or so away (into Moorgate). There are ample local shops on the doorstep or the endless amenities of Crouch End are easily accessible.

Offered furnished, available early August.

Valuation

Book a Valuation

Book a virtual or in-person valuation for your property


More details
Floorplan for Langham Road, N15 3LX
EPC Graph for Langham Road, N15 3LX


ARLA
Rightmove
Zoopla
Prime Location
PRS
CMP